CONCORSO DDG 2939/2025
Siamo sede d'esame il giorno 01/12/2025 per il turno 1 pomeridiano della prova scritta del Concorso per titoli ed esami per l’accesso ai ruoli del personale docente della scuola secondaria di primo e di secondo grado su posto comune e di sostegno.
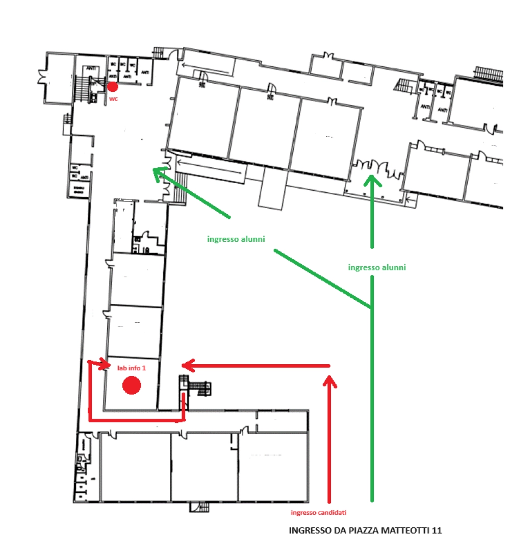
I candidati accedono dall'ingresso di piazza Matteotti 11 (dietro il campanile), secondo le indicazioni riportate nella piantina allegata.
Per chi raggiunge la sede in auto, si consiglia di parcheggiare in piazza John Fitzgerald Kennedy.
La convocazione è per le ore 13.30.
Le istruzioni per i candidati sono pubblicati al link Istruzioni.


